
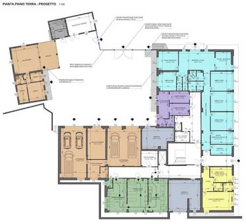
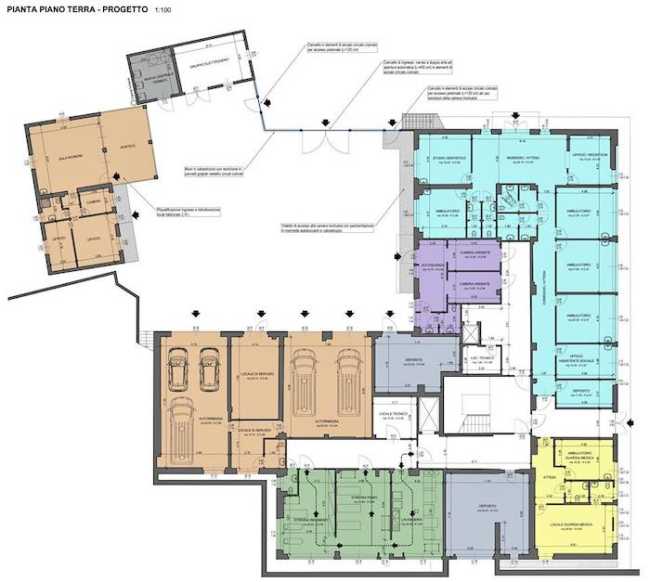
PREMOSELLO - 25-10-2018 - Una Casa della Salute con quattro ambulatori, uno studio dentistico, una sala per le assistenti sociali ed una per la guardia medica, ma non solo nella ex maternità di Premosello, attuale residenza anziani saranno poste la nuova sede della CRI, le nuove cucine per le mense scolastiche, la nuova lavanderia, le nuove camere mortuarie. I lavori verranno eseguiti nei prossimi mesi, mentre nei prossimi giorni si terrà una serata aperta ai cittadini per illustrare il progetto. "Un importante intervento che permetterà finalmente dopo anni il recupero definitivo dell'intero ex Ospedale di Maternità e dell'area ad esso esterna, con i nuovi parcheggi da poco realizzati, grazie ad un importante contributo erogato dalla Regione Piemonte", spiega il sindaco, Giuseppe Monti, che da sempre s'è speso perché la struttura trovasse piena utilizzazione. E' stato così che il vecchio ospedale dismesso negli anni '90 è diventato una RSA da 79 posti letto con il nucleo Alzheimer. Sarà il vincitore dell'appalto per la RSA a doversi fare carico degli interventi che restituiranno una funzione all'intero piano terra dello stabile; si confida di far partire i lavori nella prima metà del 2019 e inaugurare nel 2020.
Durante la conferenza stampa si è inoltre presentata anche la nuova direttrice della struttura la dottoressa Barbara Stellini, che subentra ad Andrea Lux.


